Leave a Message

Thank you for your message. We will be in touch with you shortly.

0 Byron Avenue
0 Byron Avenue
0 Byron Avenue
0 Byron Avenue
0 Byron Avenue
VIEW PHOTOS
Provided by NWMLS, Listed by COMPASS
$890,000

0 Byron Avenue

0.26 Acres

Description

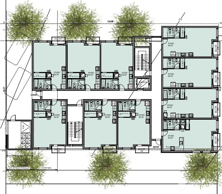
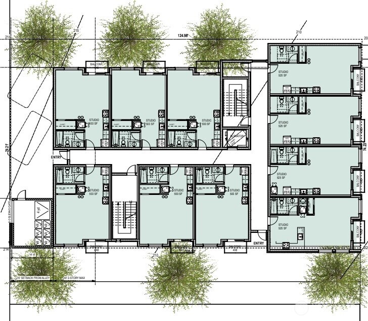
This is an exceptional investment opportunity in Bellingham's thriving Samish Way Urban Village, a designated federal Opportunity Zone. With plans to build 45-55 studio units (initial plans show 40, with potential for an additional 10-15 units), this project offers lucrative potential in a vibrant, mixed-use neighborhood near Western Washington University.The location is ideal--nestled between I-5 and the Sehome/York neighborhoods, the Samish Way Urban Village is designed for 5-7 story developments that promote density, walkability, and connectivity. Nearby, the Samish Commons project is already setting the tone with affordable housing, commercial spaces, and enhanced pedestrian pathways.Investors will also benefit from Bellingham's 8-year Multi-Family Tax Exemption (MFTE) program, available in this area. This incentive provides a property tax exemption on new residential improvements for projects with at least five units, without affordability requirements--a rare opportunity to maximize market-rate returns. At approximately $18K per unit, the numbers make this project even more compelling.Whether developed as high-demand condos or rental apartments, this property aligns with market trends and offers significant tax advantages, including Opportunity Zone incentives for long-term gains. Don't miss your chance to capitalize on this prime location and robust growth potential.

Share Property

Location

0 Byron Avenue, Bellingham, WA 98225

Status

For Sale
Michelle Harrington

Michelle Harrington

TITLE

Managing Broker

LICENSE

24000382

Property Amenities

Area & Lot
Lot Area 0.26 Acres
MLS® ID 2494767
School District Bellingham
High School Sehome High
Middle School Fairhaven Mid
Elementary School Happy Vly Elem
View Description Territorial
Type Land
Status For Sale
Exterior
Water Source Available, In Street
Sewer Available, In Street
Lot Features Paved
Utilities Electricity Available, Natural Gas Available
Finance
Sales Price $890,000
Real Estate Tax $1,365 yearly
image

Schedule a Showing

I would love to show you my beautiful property. Please select your preferred date and time below. I will be in touch shortly to confirm your appointment.

Schedule a Showing

I would love to show you my beautiful property. Please select your preferred date and time below. I will be in touch shortly to confirm your appointment.

Thank you for your interest in 0 Byron Avenue, Bellingham, WA 98225. We are reviewing your request and will be in touch shortly!

Mortgage Calculator

Estimate your monthly mortgage payment, including the principal and interest, property taxes, and HOA. Adjust the values to generate a more accurate rate.

All estimates are provided for informational purposes only. Actual amounts may vary.
$0,000 Your Payment 20 15 65
$0,000 Your Payment

Bellingham

48.7519° N, 122.4787° W

Work With Michelle

My local knowledge, extensive professional network, and years of real estate experience ensure you a smooth and seamless real estate transaction.